แบบบ้าน 2 ชั้น – D2-198




D2-198 sqm
แบบ D2-198 sqm
ราคา 4,090,000 บาท
บ้านที่คุณกำหนดได้
หิ้วกระเป๋าเข้าอยู่ได้เลย
Style: คอนเทมโพรารี่
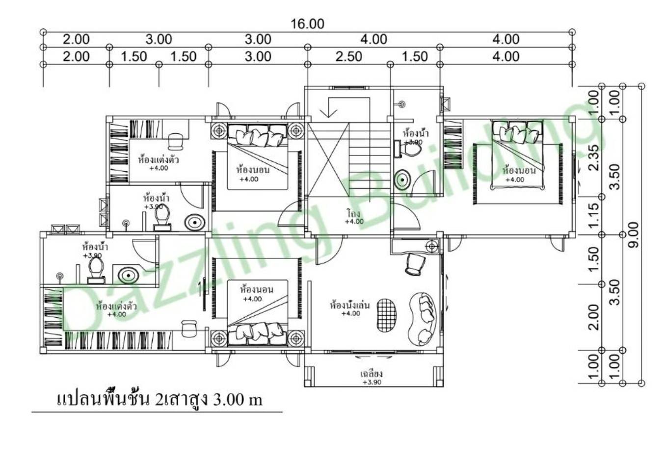
ขนาดที่ดิน: 20.00 x 13.00 m.
พื้นที่ 198.00 ตารางเมตร
1 ห้องนอนมาสเตอร์
4 ห้องนอนขนาดกลาง
4 ห้องน้ำ
1 ห้องรับแขก
1 ห้องครัว
1 รับประทานอาหาร
2 จอดรถ